Как и тысячи людей до него, журналист и блогер Павел Береснев однажды встал перед жилищной дилеммой: что купить, куда вложить накопления? На большую квартиру денег не хватало, а вот каркасный домик по сходной цене найти удалось. Но, как это часто бывает в жизни, процесс строительства и переселения прошел под оглушительную канонаду компромиссов. О самых интересных этапах пути к собственному дому Павел рассказал порталу Dom-expert.by.


Участок в Минском районе: компромисс первый
В определенный момент мы с женой осознали: своя квартира в Минске нам не «светит» — за 30 тысяч долларов семейных накоплений позволить себе можно было лишь «однушку», что тесновато даже для двоих. Поговорили и решили: домик в деревне без «агро-треша» (вода из колодца и туалет на улице) нас вполне устроит, если найдутся интересные варианты.
Шел 2014-й год, и на рынке как раз стали появляться предложения по строительству готовых каркасных домов от разных компаний. Искали вариант «под ключ», чтобы не нужно было озадачиваться поисками различных бригад под каждый вид работ – в строительстве понимания не было ни у нас, ни у близких родственников.
Участок искали в черте 30-40 км от Минска, чтобы было не очень далеко ездить на работу в город. Сразу отбросили места, которые нам не понравились по рельефу, экологии или загруженности трассы. Гомельское-Могилевское направление исключили сразу. Среди оставшихся выбрали для себя Логойское (интересный рельеф) и Гродненское (относительно дешевые участки). Поскольку я из Светлогорска (а это, фактически, город в лесу), одним из требований было расположение участка рядом с лесом.


Начали искать предложения по свободным участкам, посмотрели списки на сайте Минскоблисполкома. Выбрали несколько деревень, и поехали смотреть: что они собой представляют, кто там живет. И буквально сразу поняли, что видеть участок на карте и вживую — это две большие разницы. На карте все может выглядеть красиво, а на местности — «всплывает» грунтовая дорога километров в 5 длиной, разбить на которой подвеску авто — плевое дело. После нескольких таких «рекогносцировок» набрели на деревню Бузуны. Неподалеку от Ракова, есть асфальтовая дорога, лес, озеро в пешей доступности… А тут еще и местные жители подсказали, что скоро будут «нарезать» новые участки. Словом, поехали в Раковский сельсовет, написали заявление на выделение участка земли, и стали ждать.
Примерно через полгода нам позвонили из сельсовета и сказали: «Приезжайте». Когда приехали — там уже вовсю шло распределение участков в порядке очередности подачи заявлений. Мы тоже выбрали «полосу» около леса, и поехали смотреть. Первый участок нам не очень приглянулся, а вот соседний — понравился, он был крайним на поле, прямо возле леса. На тот момент (2014-й год) на участке не было вообще ничего — ни коммуникаций, ни подъездных дорог. Но мы рассудили так: раз участки раздают — значит, и инфраструктура не за горами. Думали: пока выберем домик и построим его — как раз и провода протянут, дорогу сделают, будет у нас все хорошо. Сейчас бы, конечно, в первую очередь смотрели не на лес, а на наличие дороги и коммуникаций. Но опыта тогда не было, поступок был во многом эмоциональный, спонтанный. Участок обошелся почти даром — около 200 долларов отдали за землю и все оформление.


Совет: если денег впритык на дом, то берите участок минимум с электростолбом и хорошим подъездом («завтраки» и «абяцанки» от местных властей стоит сразу пропускать мимо ушей). Если есть лишние средства и энтузиазм, то заранее прикиньте, сколько придется вложить в покупку джипа и автономной системы. Ну, или будьте готовы «инвестировать» строительство благ цивилизации за свой счет.
Каркасный дом за 26 000$: компромисс второй
Параллельно просматривали предложения строительных компаний, но всерьез взялись за дело, когда приобрели участок. Я ходил по тематическим выставкам, разговаривал с представителями компаний, все называли цены в 35-40 тысяч долларов минимум. А тут попалась на глаза компаний «Зодчий» с их предложением дома за двадцать с чем-то тысяч — модель «Фенникс-2K».


Источник фото: zodbel.by
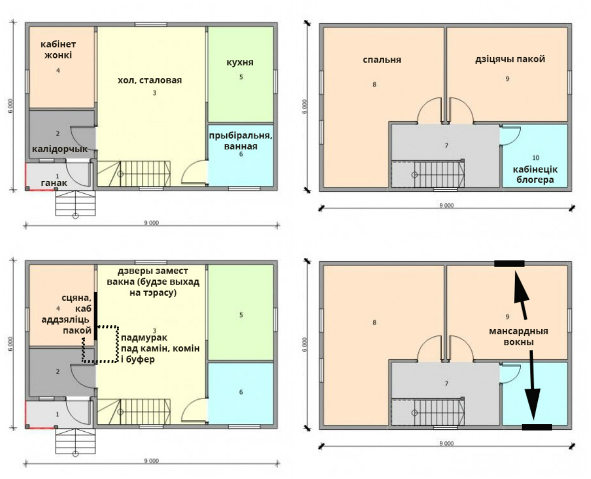
Внешне — нормальный дом, 94 квадратных метра, со вторым этажом. С учетом дополнительных опций («круглогодичное» утепление, выход на террасу, основание под камин, два мансардных окна, электропроводка по дому) цену зафиксировали на отметке $25 560.




Конкурентов по стоимости на тот момент у них не было (или мы не смогли их найти в «Гугле»). Возможно, удалось бы вложиться и в меньшие деньги — если заниматься вопросом самому. Но вникать в технологии, искать какие-то строительные бригады — на это не было времени: хотелось быстрее поменять съемную квартиру на свое жилье.
В компании с пониманием отнесли к моим желаниям, помогли, где возникли вопрос — все разъяснили. Ударили по рукам, подписали контакт. Обещали, что построят за месяц, но фактически — сделали за два. Этот момент, впрочем, нам был не особо важен — сами просили не торопиться и строить столько, сколько нужно, чтобы не страдало качество.














Во время строительства я часто приезжал, смотрел за процессом возведения дома. На мой взгляд «гуманитария» — все делали нормально. Нюансы возникли после сдачи: протекало одно окно, плохо закрывалась дверь, и т.д.


Все это мне поправили, но не сразу. Пока ты их потенциальный клиент с «живыми» деньгами — к тебе относятся очень хорошо, можно сказать — чуть ли не облизывают, отвечают на все вопросы. Но как только деньги отдал, подписал приемо-сдаточный акт по дому и настал «гарантийный» период — «заманить» бригаду на устранение недостатков уже не так просто. От претензий не отмахиваются, но бригады постоянно на заказах, менеджеры — «кормят завтраками», и т.д. Протекающее окно мне меняли несколько месяцев (все не могла приехать фура с необходимой фурнитурой из Польши), пока я не написал в блог об этой проблеме. Сразу и фура приехала, и окно починили.




В процессе эксплуатации дома вылезли новые косяки: например, зыблющиеся полы. На мой вопрос: «Почему они играют, как батут?», мне ответили: «А что вы хотели? Это нормально для деревянного дома».


Первый раз включили стиральную машину — и на стадии отжима стало страшно: ходуном заходил весь дом. Оказывается, нужно было или пол делать с большим числом лагов, или вообще под «стиралку» заливать свой фундамент.


Сейчас мы готовимся встретить первую зиму в доме, и уже в ноябре — кажется, что дом холодноват. То ли 150 мм утеплителя недостаточно, то ли сделано что-то криво, но тепло из дома уходит быстро (собираюсь проверить дом с тепловизором — тогда станет понятно, в чем причина). Так вот вопрос: почему об этих нюансах «Зодчий» не предупредил сразу, до заключения договора? Могли сказать и про полы, и про утеплитель — докинуть немного денег на такие важные вещи не было бы проблемой. Постфактум, когда есть вся отделка, устранять эти проблемы значительно тяжелее.


Коммуникации «с миру по нитке»: компромисс третий
Отсутствие коммуникаций (особенно электричества) быстро стало главной проблемой. На все наши обращения в сельсовет, нам отвечали: «А что вы хотели? Денег нет, стройтесь и живите на генераторах». Даже проекта коммуникаций на район застройки не было! Только сейчас, в конце 2017-го года (!) проект на наше поле готов, и находится на госэкспертизе. Если (и когда) он ее пройдет — Воложинский УКС сможет объявить тендер на проведение работ по налаживанию инфраструктуры. А сколько времени займет этот процесс — никто не знает. И это еще при условии, что в бюджете найдутся деньги.
Конечно, мы не стали ждать у моря погоды. Параллельно прорабатывали два главных вопроса: отопление дома и электрификацию. Вторым этапом планировали провести канализацию и воду, и только потом заселяться. Когда поняли, что электричества в ближайшем времени нам не светит, даже временной проводки (до ближайшего столба — 700 метров), стали думать, как решить этот вопрос своими силами.


Вышли на компанию SolarEnergy, которая занимается солнечными батареями. Мы посчитали все возможные источники потребления энергии в доме, с учетом максимально энергоэффективных устройств (из того, что было на рынке). Вышли на цифру потребления в ваттах, отправили данные в фирму, они просчитали и озвучили стоимость системы «под ключ». В нее входили: сами солнечные панели (4 шт.), аккумуляторы, контроллер и инвертор. Плюс бензиновый генератор как источник дополнительного питания. За все отдали 5500 у.е.






Когда аккумуляторы заряжены — можно втыкать в розетку все что угодно — до 5 киловатт нагрузки аккумуляторы «держат». Но чем более «энергоемкий» прибор включен, тем быстрее разряжаются аккумуляторы.


К сожалению, большая часть энергии нужна вечером, это самое «затратное» время. Поэтому старались запускать стиральную машину только днем, и когда светит солнце, чтобы энергия шла напрямую от панелей, а не от аккумуляторов. Пока у нас нет холодильника, потому что энергоэффективные модели стоят очень дорого. Продукты сейчас храним на террасе, снаружи дома, а покупку холодильника отложили на весну. Там уже или электричество проведут, или все-таки раскошелимся на что-то энергоэффективное.


С учетом разумной экономии, бензиновый генератор мы не запускали вплоть до ноября: солнечных панелей хватало на поддержание аккумуляторов на 100% зарядке. Сейчас солнца почти нет, поэтому где-то через день запускаем на часик генератор, подзаряжаем батареи.
Незапланированная покупка автономной системы подорвала наше финансовое состояние, поэтому все остальное пришлось делать своими руками. В том числе и систему отопления. Сначала хотели ставить твердотопливный котел (для тепла) и камин (для души). Нам подсказали, что можно найти камин с водяным контуром. Вышли на фирму «Аквакамин», которая занимается поставкой именно таких устройств: они просчитали нам всю систему — камин, дымоход, и водяной контур системы отопления. Радиаторы я докупал уже сам, лично ездил за ними на лидский завод. В итоге мы с фирмой договорились на шеф-монтаж: мне привезли все материалы, трубы, фитинги и показали, как собирать этот конструктор. А монтировал я уже всё своими руками. На этом сэкономил больше 1000 долларов.




Кроме камина с водяным контуром, в системе установлен бак-накопитель горячей воды на 750 литров, бойлер и насосы. Сценарий использования выглядит так: закидываю дрова в камин – и… на этом всё. Автоматика регулирует процесс горения в топке, в радиаторах стоят терморегуляторы, а буферная ёмкость — подает горячую воду в систему даже когда погас камин. Так поддерживается постоянная температура в доме 21-23 градусов. Сейчас, в ноябре, камин приходится растапливать всего раз в сутки.


С водой и канализацией тоже пришлось помучаться. Водоносный слой на участке оказался на большой глубине — более 100 метров. Бить скважину оказалось дорого, решили выкопать колодец. Но когда закопали в землю 7 колец, а на воду не было и намека, решили это дело остановить. В итоге колодец превратился в канализационный септик: я зарыл рядом еще 3 кольца, соорудил второй переливной колодец.
А мне пришлось вернуться к идее с бурением скважины. Взял в кредит 3000 долларов и получил за это дырку в земле на 105 метров. Насос, труба до дома, фитинги, расширительный бак и другие необходимые вещи обошлись еще примерно в 600 долларов. Копал траншеи и фитинги крутил самостоятельно.










В итоге на сегодняшний день картина выглядит так: коммуналку я не плачу, только 3 рубля в месяц за вывоз мусора. Конечно, какие-то деньги тратим на дрова и бензин для генератора, но эти суммы посчитаем после первой зимы.
Вроде бы — живи, да радуйся, государству ты ничего не должен. Но если посчитать все деньги, вложенные в свои автономные коммуникации — понимаешь, что жить в чистом поле «по-городскому» — удовольствие недешевое.


ИТОГО
Съехали со съемной квартиры и заселились в дом летом 2017 года. Понятное дело, что мелких недоработок по дому хватало, не вся мебель имелась в наличии, но… въезжать в свой дом оказалось все равно приятно. И жить здесь нам однозначно нравится, несмотря на все нюансы.
Уже после того, как заселились — поняли, что многие вещи можно было сделать по-другому. Оказалось, что двухэтажные дома — это зло (сейчас строили бы одноэтажный). Осознали, что многие розетки расположены не там, где нужно (дизайн-проекта у нас не было). Убедились, что маловат коридор, особенно — когда приходят гости. Увидели, где можно было сэкономить, поработав своими руками. И вот таких моментов — много. Но, наверное, нельзя вот так сразу взять и построить идеальный дом — все равно какие-то нюансы станут понятны лишь после того, как грабли ударят по лбу.
Тем, кто только собирается строиться, могу дать главный совет. Даже если решили заказать дом под ключ — в строительстве все равно нужно разбираться и контролировать каждый этап. Стоять над душой и показывать пальцем, что здесь вы неправильно забиваете гвозди, а здесь — нужно положить больше утеплителя. Потому что, скорее всего, ближайшие лет 20-30 никто у нас в стране не будет строить «как для себя». И поэтому лучше вникнуть в строительные нюансы до того, как отдать кому-то свои деньги, чем после — в процессе написания рекламаций и поиска ответов на вопросы а-ля «почему трясется дом от стиральной машины?».
Беседовал: Дмитрий Малахов
Фото предоставлены Павлом Бересневым
Задать
вопрос эксперту