О своем доме мечтают многие, но цена и сроки строительства нередко становятся камнями преткновения на пути к обретению «загородного счастья». Герои нашей статьи задумывались о доме давно, но к конкретным действиям перешли после рождения второго ребенка. Перебрав несколько вариантов, они остановили выбор на компании, сумевшей предложить лучшую цену и сроки возведения. Оправдались ли ожидания владельцев? Читайте в нашем эксклюзивном материале.


У Антона и Светланы двое детей. Дочке — восемь лет, сын лишь недавно начал ходить. Несмотря на разницу в возрасте, дети с упоением бегают по едва взошедшей траве и катаются на качелях, подставляя лица лучам осеннего солнца. Не нужно быть специалистом, чтобы понять: они счастливы. И это — именно то, чего добивались их родители. Впрочем, пусть хозяева расскажут свою историю сами, даем им слово.
Решение
Светлана: Я жила в частном секторе Минска до 12 лет — в совсем небольшом домике. Но с детства запомнила это ощущение: ты проснулся, перешагнул порог — и всё, ты уже на улице, гуляешь в свое удовольствие. И настоящим летом для меня всегда было лето в деревне, по тем же причинам. Естественно, я хотела, чтобы и мои дети проводили больше времени на свежем воздухе.


Долгое время мы жили в столичной квартире: муж делал карьеру, я — приглядывала за дочкой и хлопотала по хозяйству. Когда дочь подросла, меня стала угнетать невозможность нормально отдохнуть в городской черте: детские площадки быстро надоедали, а до хорошего парка еще нужно было добраться. Уже тогда стали посещать мысли: может, пора перебраться за город?


Окончательно эта мысль «созрела» с появлением второго ребенка: я поняла, что не хочу все время держать его в четырех стенах. Что нам нужна хотя бы своя территория, где мы сможем играть на свежем воздухе, проводить каникулы и отдыхать всей семьей. Словом, захотелось свой дом. Можно сказать, что инициатором строительства была я. Но первым делом — нужно было выбрать подходящее место.
Выбор участка
Антон: Работа, школа — это все пока в городе. Поэтому мы специально рассматривали направление Логойского тракта: у нас там квартира, да и наматывать каждый день круги по МКАД не хотелось. Искали только приватизированный участок: в случае арендованного — всегда есть риск, что через вашу землю пустят очередную трассу, а вас — «попросят» переселиться. В аукционах не участвовали, ездили, смотрели «вживую» из тех, что были выставлены на продажу. Предварительно для себя решили, что участок должен быть не меньше 15 соток.
Когда увидели этот — сразу поняли, что нам он подходит. Двадцать пять соток, есть все коммуникации, хороший подъезд, недалеко от Минска… И самое главное — этот был относительно ровным. На остальных мы видели такие перепады высот, что нам буквально сходу озвучивали «везите 100 машин земли». Ну, кому это нужно?
Дом, который построил… кто?
Светлана: На первых порах я вообще думала бытовку на участке поставить — чтобы было куда сумки кинуть, да от дождя укрыться. Хотела просто приезжать с детьми, гулять по своему газону, устраивать барбекю, лежать на солнышке — вот это вот всё. Но муж отговорил, сказал — давай уже нормальный домик построим, пусть и небольшой.


Антон: Еще на этапе выбора участка мы отвергли варианты с готовыми домами: рынок «вторички» сейчас переполнен постройками с серьезными ошибками, выявить которые — почти невозможно. Поэтому строить решили сами, причем хотели что-то быстровозводимое. Сперва рассматривали продукцию компании «Дубльдом». Но там как-то работа с клиентом была поставлена странно: нам не хотели называть конкретных цифр и сроков, пока не увидят участок. Про технологию толком рассказывать не хотели. Словом, не клиентоориентированный бизнес — для себя мы так решили. Дом, проект — это еще не все.
Светлана: Потом начали просматривать Интернет, искать каркасные дома, поисковик выдал компанию «ХоумЛенд». Я начала наводить справки, и оказалось, что моя знакомая там раньше работала и дала компании негативную оценку: мол, все у них плохо, закрыться могут в любой момент. Я сама позвонить решила, и прямо, «в лоб» спросила — все ли у вас нормально, не потеряю ли я деньги, смогу ли получать техподдержку весь гарантийный период и т.д. Меня уверили, что бояться нечего, предложили приехать убедиться в этом лично, посмотреть их дома. Офис располагался неподалеку, и мы решили подъехать познакомиться, посмотреть что за каркасные дома они предлагают.


Так выглядел проект «Зефир в шоколаде» на рендерах








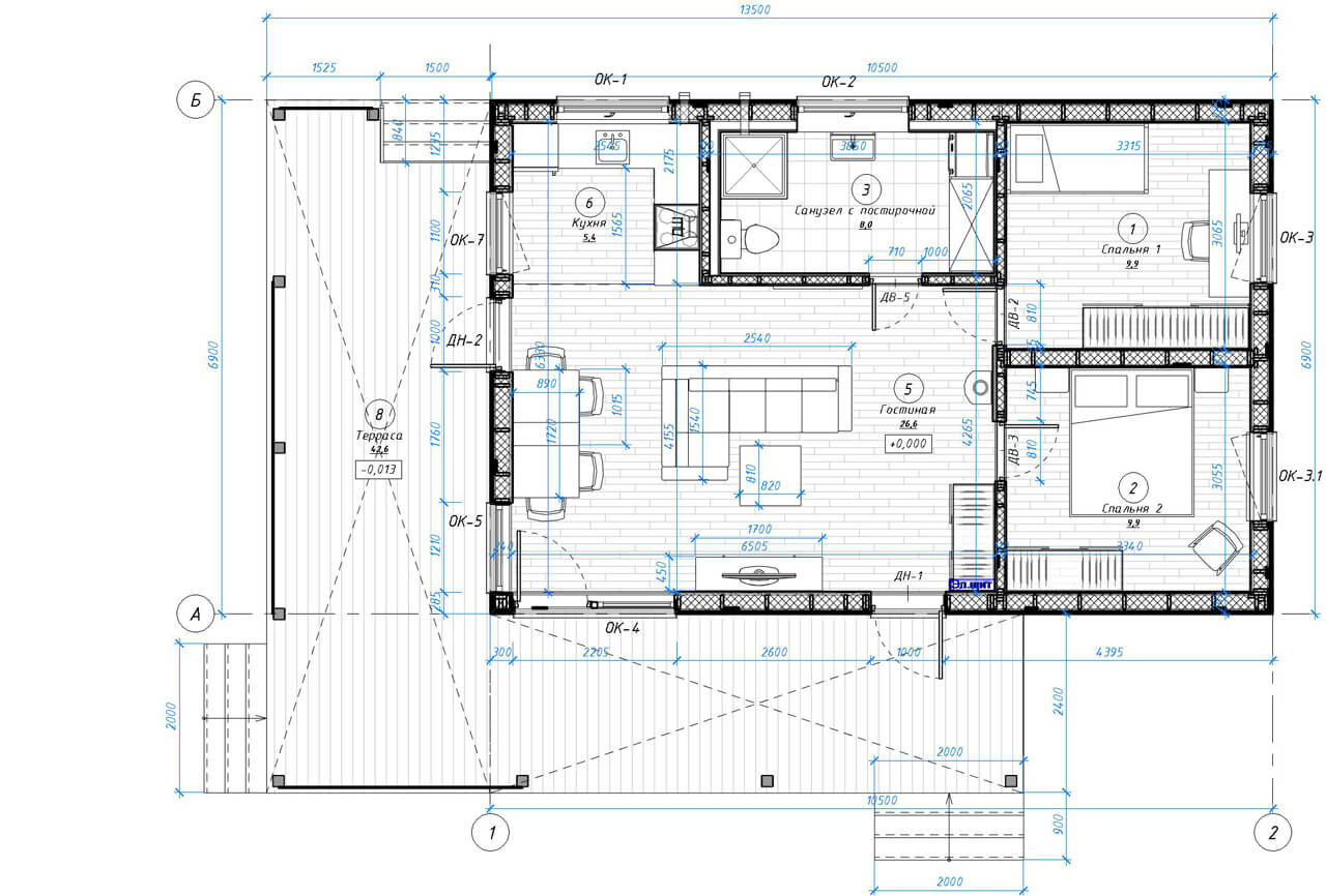
Антон: А у них как раз была акция — скидка 20% на любой проект. Подумали: нужно торопиться, пока действует. Да и проект «Зефир в шоколаде» нам приглянулся: концепция, дизайн — они все же поинтереснее, чем у «Дубльдома». Но в первую очередь понравилась планировка — мы искали вариант с хорошей гостиной и двумя небольшими спальнями, для нас и детей.




Еще понравилась возможность последующей модернизации до двухэтажного дома. Ну, и конечно сроки: время имело значение. Мы хотели въехать в свой дом уже летом, поэтому так и озвучили: в июне хотим заселиться. Нам ответили — хорошо, построим за 4 месяца. В эти сроки компания уложилась, лишь чуть-чуть их пролонгировала из-за плохой погоды в начале лета: проехать к стройке порой было проблематично, машины застревали.
Как строили?
Виталий Дмитриев, компания « ХоумЛенд »: Каркасные дома — уже давно не новинка, технология отработана годами. Сначала укладываем свайно-ростверковый фундамент «Тисэ», на производстве полностью делаем домокомплект, его привозим на участок и собираем дом.


Стена дома трехслойная. Изнутри — экологичный «гринборд», снаружи — влаго-ветро-защищенный изоплат. Промежуток между стенами в 200 мм заполняется эковатой. Задуваем мы ее под давлением, большим, чем рекомендовано технологией. Всё для того, чтобы уничтожить малейшую возможность образования полостей и мостиков холода.


Утеплили стены эковатой — накрываем кровлей, и делаем внешнюю отделку. По наружной стене у нас идет двойная обрешетка (поверх изоплата), на которую укладываем фасад из декоративных плит ЦСП с посыпкой мраморной крошкой и лиственницы.




Светлана: К рабочим вопросов вообще не возникало. Разве что иногда хотелось подойти и сказать: «Ускорьтесь вы уже» (улыбается. — Прим. ред.). Но в итоге сроки компания выдержала и сделала все качественно.






Антон: То, что на стройплощадке налажены все процессы — было заметно сразу. Никаких перекуров по 15 минут, люди приехали — и работают, каждый занят своим делом. Понравилось и отношение к клиентам: на стройке чистота и порядок, в компании даже предусмотрена система штрафов для рабочих за оброненные окурки. Вроде мелочь — а приятно.
А что внутри?
Светлана: В кухонной зоне мы запроектировали плитку с теплым полом. Но из-за конструктивных особенностей дома такое решение привело бы к образованию небольшого порога, и мы решили оставить теплый пол только в ванной.






Кладовку, кстати, объединили с ванной комнатой, значительно увеличив площадь последней.


БЫЛО


СТАЛО
Дом был сдан с внутренней отделкой, правда, материалы, мебель и сантехнику мы покупали сами, а устанавливала компания « ХоумЛенд ». Ничего дорогостоящего в доме нет: мебель достаточно простая, белорусского производства, плитка — «Керамин».


Антон: Каркасные дома можно отапливать разными способами, для себя мы выбрали вариант с электричеством: в каждой комнате установлены инфракрасно-конвекторные батареи. Каждая весит 28 кг, внутри — кварцевый песок, а излучение сравнимо с длиной волны солнечного света. Дополнительно установим еще печь-камин — для особо трескучих морозов, и на случай отключения электричества. Дымоход под нее предусмотрен.




Газ к участку подведен. Но отапливать им не хотели по соображениям безопасности (все-таки двое детей), да и котельную делать — это либо лишнее помещение внутри проектировать, либо пристройку. Согласования, опять же. Словом, пока решили остановиться на электрическом обогреве. Перезимуем — будет понятно, хватает ли нам этого для комфортной жизни. По всем расчетам должно хватить.
Виталий Дмитриев, компания « ХоумЛенд »: Это достаточно простая комплектация, ничего лишнего в доме нет. Внутри — имитация бруса, отделка хвоей класса AB.










На террасе — лиственница «Старовер», произведенная в Беларуси.


Простые, но достаточные для наших климатических условий двухкамерные пластиковые стеклопакеты.




В качестве опций мы предлагаем внутреннюю и внешнюю отделку более высококачественными материалами, но, разумеется, это увеличивает стоимость дома. Справедливости ради отмечу, что у нас почти не заказывают базовые комплектации — чаще всего люди выбирают более дорогие отделочные материалы. Например, этот дом обошелся хозяевам около 40 000$ (по акции), сегодня похожая комплектация стоит 45 000$, а базовая — всего 31 000$. Гарантия на дом составляет 5 лет.
На участке
Антон: Долго думали, какой забор поставить, чтобы он и закрывал нас от посторонних взглядов, и при этом не был «глухим». В итоге выбрали интересный вариант: визуально прозрачный решетчатый забор с возможностью полного или частичного закрытия специальными съемными панелями из термопласта. В дальнейшем планируем купить «взрослые» деревья и посадить на участке, чтобы закрыться от расположенного рядом соседского дома.


С одной стороны дома на участке уже поставили детскую площадку с горкой и качелями, турники для занятия воркаутом, положили по всей площади травмобезопасную прорезиненную плитку.






С этой же стороны дома будет газон для отдыха, зона барбекю. На другой стороне участка поставим баню и организуем небольшую зону для «релаксации».
Советы тем, кто никак не решится
Светлана: О доме я мечтала много лет, и отметила такую закономерность: чем больше ты его себе представляешь, визуализируешь — тем быстрее все приходит. Мечтать — это хорошо, но когда начинаешь делать первые шаги: рассматривать разные варианты, выбирать проект, искать участок, — тем скорее приходишь к своему дому. Не бойтесь начинать, даже если на руках нет всей суммы, главное (если вы действительно этого хотите) — это начать. Поиски участка займут какое-то время, а в процессе может произойти все что угодно: появятся новые строительные материалы или технологии, на рынок придут новые игроки, снизятся цены.






Антон: А когда начнете строиться — обязательно присматривайте за ходом работ, даже если компания предложит вам все «под ключ». Особенно это касается этапа внутренней отделки. Даже не потому, что строители могут где-то «накосячить», а потому, что каждый видит по-своему. Например, я могу увидеть оттенок внутренней обшивки один, моя жена — другой, а исполнитель работ — третий. Вот, чтобы итоговый вариант оказался именно тем, какой вы себе представляли — лучше приезжать почаще. Смотреть, что уже сделано и корректировать по ходу действия: подбирать нужные цвета, указывать точные места расположения розеток или мебели и т.д. У нас, например, так получилось с оттенком внутренних стен: пропитка в один слой дает один цвет, в два – другой и т.д. Если бы не контролировали сами — при сдаче дома достался бы нам «разноцвет», и не потому, что нас хотели обмануть или где-то схалтурить, а просто из-за разных взглядов на процесс.












Светлана: Если бы перед нами стоял сейчас выбор: остаться на квартире или в частном доме, мы бы однозначно выбрали загородный вариант. Разве что — строили бы дом немного побольше. Окружающая природа, свежий воздух, своя земля и независимость от соседей — это то, ради чего стоит пожертвовать комфортом столичной квартиры. По крайней мере, мы свой выбор уже сделали. И не жалеем.
Текст: Дмитрий Малахов
Задать
вопрос эксперту