Баня построена из профилированного бруса 150х160 мм. Перегородки на первом этаже каркасного типа. Мокрые помещения отделаны листами СМЛ с последующей штукатуркой, покраской и облицовкой керамической плиткой. Для компенсации усадки сруба каркасы перегородок и направляющие для крепления листов СМЛ крепились на П-образные компенсаторы. Второй этаж и прихожая отделаны вагонкой. Окна, входная дверь и дверь в моечную – стеклопакеты.
Баня оборудована бассейном, обогревателями помещений (пригодна для круглогодичного пользования), приточно-вытяжной вентиляцией. Бассейн оборудован очисткой, фильтрацией и подогревом воды.
Установлена подсветка бассейна. Инфракрасные излучатели оснащены регуляторами температуры, что позволяет постоянно поддерживать заданную температуру в помещениях. Вентиляция состоит из регулируемых вытяжек, коробов и вытяжного вентилятора с регулятором мощности. В бане – холодная и горячая вода (установлен бойлер).
На фотографиях показаны все этапы строительства объекта, вплоть до запуска парилки. Особых нюансов при строительстве не было. При планомерном финансировании и согласовании всех производственных этапов, приятно работать и все получается хорошо и качественно.
Параметры проекта
Срок строительства 5 месяцев (1,5 месяц – фундаменты и сруб, 3,5 месяца – отделка).
Среднее количество рабочих на стройке – 4 человека.
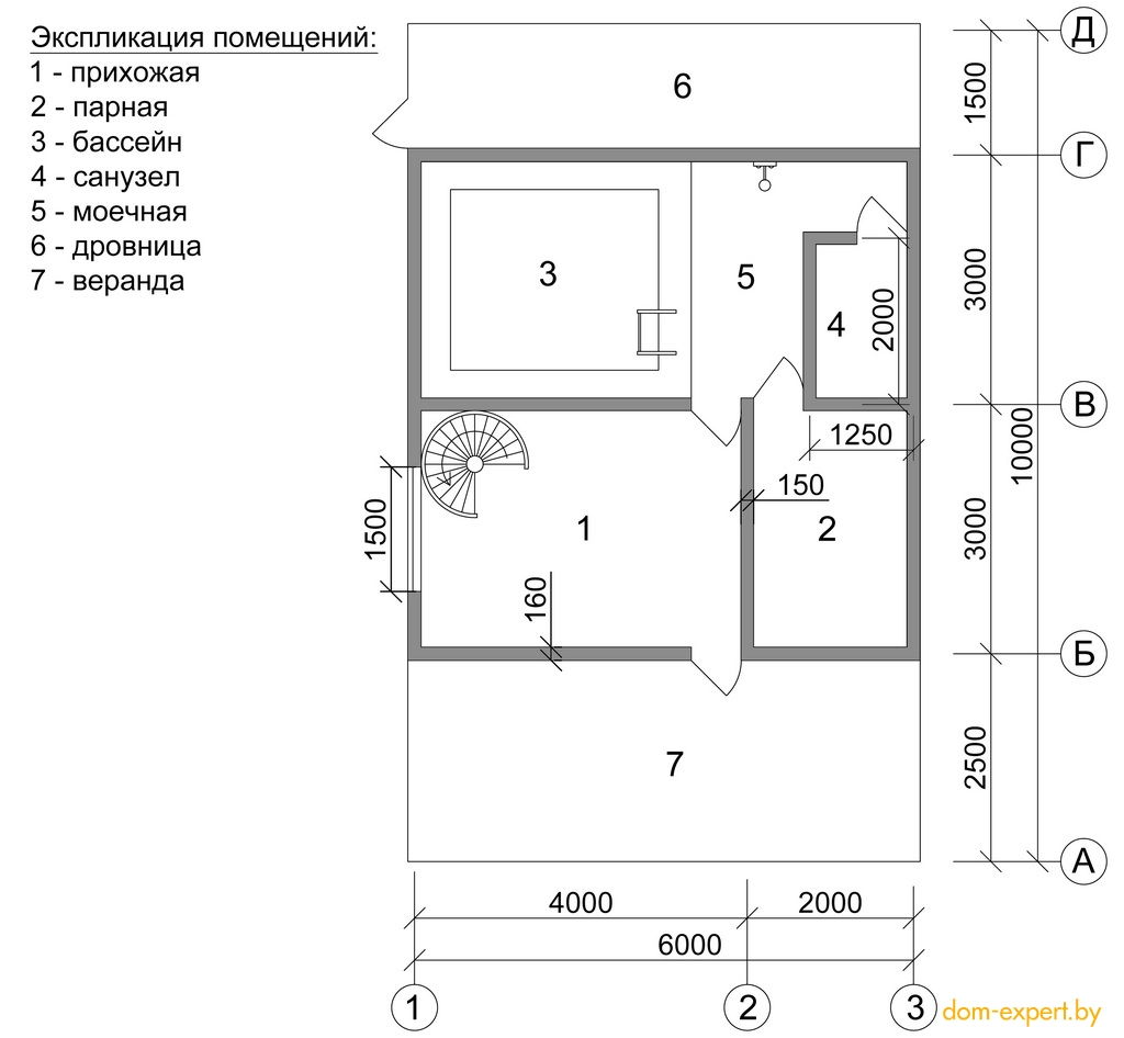
Площадь застройки 96 м.2
Строительный объем 205 м.3
Высота здания: 7,8 м.
— 1-й эт. – 2,6 м.
— 2-й эт. – 2,6 м.


1-й этаж:
1. Прихожая 8,3 м2
2. Парилка 3,8 м2
3. Туалет 2,5 м2
4. Моечная 5,1 м2
5. Бассейн 8,0 м2
6. Веранда 15,0 м2
7. Дровница 9,0 м2
2-й этаж:
1. Комната отдыха 30 м2
Описание проекта
Фундаменты: ленточные, бетонные, армированные. Техподполья нет.
Стены дома: деревянный сруб из профилированного бруса 150х160 мм.
Несущие конструкции: деревянные балки, стропила, стойки.
Перегородки каркасного типа.
Основание пола 1-го этажа: трамбованная песчано-гравийная смесь. В качестве чернового пола армированное бетонное основание. Чистовой пол 1-го этажа из половой доски и декоративной плитки.
Отделка бассейна: плитка стеклянная мозаика.
Стены первого этажа внутри утеплены, вагонка в прихожей. Мокрые помещения – обшивка стен листами СМЛ, армированная декоративная штукатурка, декоративная плитка. Парилка: ольховая вагонка.
Отделка 2-го этажа: деревянный пол, вагонка.
Бассейн оснащен освещением, оборудованием очистки, фильтрации и подогрева воды (находится в санузле).
Водопровод от местной сети, горячая вода от бойлера.
Электричество от местной сети. Проводка скрытая. Щит управления находится в санузле.
Канализация: прямой слив в стационарный колодец.
Отопление: инфракрасные обогреватели. Датчики управления находятся в каждом обогреваемом помещении.
Вентиляция: приточно-вытяжная.
Объемы работ, материалы:
| откапывание траншей и котлованов | 22 м.куб |
| бетон | 37 м.куб |
| арматура | 1000 м.п |
| опалубка | 4 м.куб |
| ПГС | 10 м.куб |
| профилированный брус | 15 м.куб |
| обрезной пиломатериал | 15 м.куб |
| утеплитель | 24 м.куб. |
| вагонка, блокхаус | 170 м.кв |
| половая доска | 46 м.кв |
| листы СМЛ | 54 м.кв |
| штукатурные и гидроизоляционные смеси | 800 кг |
| облицовочная плитка | 45 м.кв |
| металлочерепица | 110 м.кв |
| канализационные кольца с крышкой и люком диам.2м | 2 шт |
| инфракраные излучатели с регуляторами | 4 шт |
| оборудование очистки, фильтрации и обогрева воды в бассейне | 1 к-т. |
| вентиляторы приточно-вытяжной ветиляции в комплекте с коробами и регулируемыми вытяжками | 1 шт |
| окна 1500х1500 | 3 шт |
| двери | 5 шт |
| краски | 100 кг |
| плитка «Бессер» | 45 м.кв |
| электрооборудование объекта в комплекте |
Этапы строительства
-


- Фундамент заливается в 2 этапа. Этап первый: заливка армированного бетонного основания.
-


- Заливка ленточного армированного фундамента этап 2-й.
-


- Армирование бетонного фундамента бассейна и прокладка коммуникаций к нему.
-


- Фундамент под стены сруба и для бассейна заливаем одновременно для сокращения сроков строительства.
-


- Устройство песчано-гравийного основания под полы. ПГС трамбуется и проливается водой.
-


- Прокладка подпольных коммуникаций и устройство армирующей сетки для бетонного основания пола 1-го этажа.
-


- Устройство сруба из профилированного бруса.
-


- Заливка бетонного основания пола 1-го этажа. Устройство стропильной системы кровли.
-


- Устройство чернового потолка со звукоизоляцией. Установка коробов вентиляционной вытяжки. Устройство каркасов перегородок и каркасов под отделку стен листами СМЛ (устанавливаются на П-образные компенсаторы для компенсации усадки и деформаций сруба в процессе эксплуатации). Прокладка скрытых коммуникаций (электричество, водопровод).
-


- Устройство чернового потолка со звукоизоляцией. Установка коробов вентиляционной вытяжки. Устройство каркасов перегородок и каркасов под отделку стен листами СМЛ (устанавливаются на П-образные компенсаторы для компенсации усадки и деформаций сруба в процессе эксплуатации). Прокладка скрытых коммуникаций (электричество, водопровод).
-


- Устройство кровли из металлочерепицы и конструкций веранды и дровницы.
-


- Обшивка стен дровницы обрезной строганой доской.
-


- Винтовая лестница на 2-й этаж с полочками и столом.
-


- Топка печи-каменки для парной.
-


- Вид из прихожей на веранду. Слева от двери: выключатели света для всех помещений; управление инфракрасными обогревателями прихожей и моечной, регулятор работы вытяжного вентилятора.
-


- Моечная, справа дверь в санузел.
-


- Оборудование бассейна, выше в дальнем углу щит управления электроэнергией.
-


- Вид из моечной: слева вход в парную, прямо выход в прихожую.
-


- Просто бассейн с освещением, очисткой, фильтрацией и подогревом воды.
-


- Просто бассейн с освещением, очисткой, фильтрацией и подогревом воды.
-


- Парная.
-


- Парная.
-


- Парная.
-


- Комната отдыха на втором этаже (мансардный этаж).
-


- Комната отдыха на втором этаже (мансардный этаж).
-


- Инфракрасные обогреватели (ИК излучатели).
-


- Инфракрасные обогреватели (ИК излучатели).
-


- Баня с бассейном, парная затоплена. С легким паром.
-


- Баня с бассейном, парная затоплена. С легким паром.
-


- Вход в моечную с бассейном.
Задать
вопрос эксперту