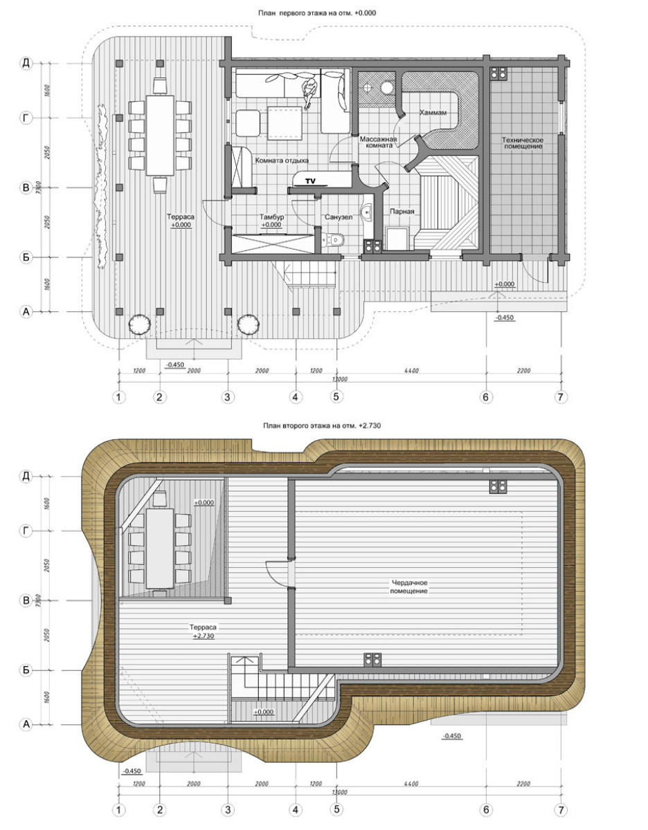
Этот уникальный спа-комплекс построили для многодетной семьи Горенко, в рамках телепередачи «Дачный ответ». Под крышей из камыша расположились: хаммам, парная, комната отдыха, душевая, туалет, а за пределами стен хватило места еще и для террасы с вместительным столом! Комплекс построен полностью из экологических материалов, что делает досуг владельцев более комфортным, а процесс оздоровления — эффективным. Подробности о проекте — ниже по тексту.


Максим Лукьянов — дизайнер проекта — применил достаточно редкий архитектурный стиль «бионика», в основе которого лежим сочетание естественных природных форм и натуральных строительных материалов. И хотя конечный результат слегка отличается от первоначального плана — можно утверждать, что проект удался на славу.




Комплекс построили на пустом месте участка — там, где раньше стоял ветхий сарайчик. Трехуровневый утепленный фундамент заливали «с нуля»: сперва ленточный периметр, внутри которого уложили песчаную подушку, утепление пенопластом, гидроизоляцию и залили верхним, финишным слоем бетона. Получилась сплошная монолитная плита. В чем-то это технология перекликается со знаменитой «шведской плитой», о которой мы уже писали. Цоколь фундамента облицевали камнем-плитняком.




Стены дома сделаны из древесины, и, в отдельных местах утеплены плитами минваты. Клееный брус из кедра за счет содержания смолы цедрин положительно влияет на сердечно-сосудистую систему и придает помещениям комплекса неповторимый аромат. Стены выполнены из сибирского кедра, внутренняя отделка — из канадского и ливанского кедра.






Не менее экзотические материалы использованы и при отделке дома. Доска на террасе (площадью в 35 кв.м) — из перуанского тика кумару, это дерево не гниет. На втором этаже расположена детская игровая комната, где могут уединиться дети, пока взрослые отдыхают в хаммаме или на веранде. Пол второго этажа — из лиственницы. Вся древесина обработана соответствующими пропитками от гниения и воздействия ультрафиолета (наружные поверхности).
Изюминкой комплекса стала огромная, толстая кровля из снопов камыша. Толщина слоя — 35 см, а местами достигает м 45 сантиметров. Такая крыша не промокнет даже на четверть толщины — независимо от силы и продолжительности ливней. Также она не нуждается в дополнительном утеплении или шумоизоляции.






Внутреннее содержание комплекса не уступает внешнему. Например, во всем доме проложены системы теплых полов с раздельным управлением. Отапливает их мощный котел с 800-литровым баком для подогрева воды.


Технологические нововведения встречаются буквально в каждом помещении. В хаммаме организована точечная оптоволоконная подсветка потолка, а все помещение выложено мозаичной плиткой. В душевой (где также подогревается пол) установлено обливное ведро на 25 литров с автоматическим набором воды. Даже унитаз напичкан электрикой, имеет функции бидэ и управляется с пульта ДУ. При этом спа-комплекс полностью автономен и «отвязан» от дома. Котел работает на дизельном топливе, подвод которого осуществляется от вкопанного в землю бака-накопителя. Емкости бака хватает минимум на неделю активного использования всех отопительных систем. Даже канализация в комплексе отдельная: вода уходит в обособленную двухуровневую систему биологической очистки.
Результат вы можете видеть на фотографиях ниже:














Об этом комплексе можно рассказывать долго, но лучше один раз увидеть: в двух выпусках передачи «Дачный ответ» уместились все, даже мельчайшие подробности этого незаурядного строительства.
Часть 1:
Часть 2:
Текст: Дмитрий Малахов
При подготовке статьи использованы материалы ООО «Банковъ» (сайт http://bankow.ru), передачи «Дачный ответ» и сайта http://www.peredelka.tv
Задать
вопрос эксперту